Épületek tervezése
Az ember életének egyik meghatározó eseménye, mikor elhatározza, hogy saját otthont teremt, egy olyan életteret, ahol sok évet, évtizedet, vagy akár egész hátralévő életét szeretné eltölteni. Így az épület kialakításának tükröznie kell a megrendelő igényeit, lehetőségeit, olyan lakóterek kialakításával, ahol jól érzi magát, amely megfelelő környezetet biztosít a mindennapi élethez, és ahová szívesen tér haza.
Elképzeléseink megvalósításához építész szakember segítségére van
szükség, aki tapasztalata, komplex látásmódja segítségével hozza létre
az építtető igényei, valamint a helyi adottságok figyelembe vételével
kialakuló épületet.
Ennek szellemében nyújt segítséget cégünk az épület létrehozásához,
nagy hangsúlyt fektetve a megrendelő igényeinek alapos megismerésére,
azt kiegészítve hasznos tanácsokkal, javaslatokkal.
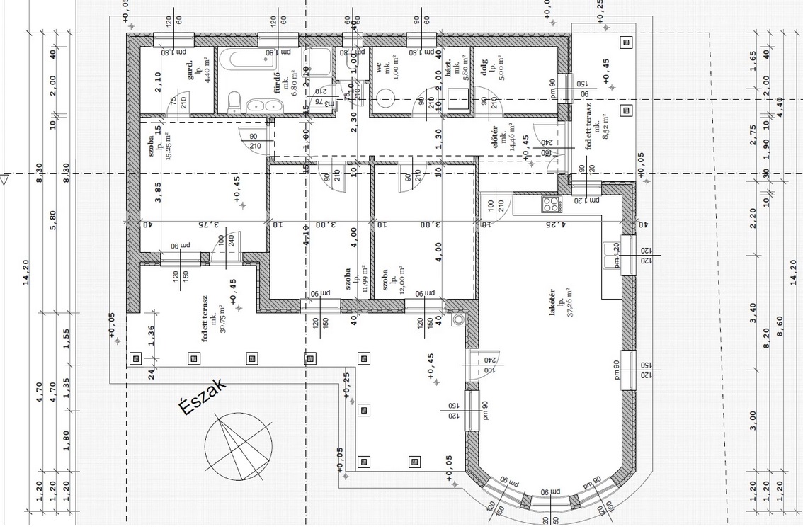
A kialakult elképzelések alapján, az általunk elkészített
vázlattervek segítségével kap képet az építtető a megálmodott ház
kialakításáról. Ezek alapján igény szerint pontos árajánlatot is
készítünk az épület kivitelezésére, az előre egyeztetett műszaki
tartalom szerint. Így komplex képet adunk a tervezett ház
kialakításáról, ill. a hozzá tartozó bekerülési költségekről, a
Megrendelőink további döntéseinek megkönnyítése érdekében. Az árajánlat
elkészítése teljesen ingyenes és további kötelezettségekkel nem jár.
Az elkészült, adott esetben többszöri módosítással véglegesített
vázlattervek elfogadása esetén, a következő lépésként az építési
engedélyezési tervdokumentációt állítjuk össze. Az esetek nagy részében
ezen dokumentáció szolgál a kivitelezés alapjául, így nagy figyelmet
fordítunk az pontosságára és a kidolgozottságára az elkészítése során.
Kérjük, vegye fel velünk a kapcsolatot, hogy együtt megtervezhessük álmai otthonát, vagy éppen cégének új telephelyét, s hogy minden reményünk szerint egy sikeres együttműködés vehesse kezdetét.

